Key features
- 1st Class Kiln-Dried Spruce
- Door with 45mm thick laminated wood and double glazing
- 18mm T&G Roofboards
- 12x12cm laminated quality posts
- All hardware included
- Untreated
Build & materials
- Walls made from 28 mm logs for stability and insulation.
- Supplied with Treatment with Black wood-oil for enhanced durability.
- Flatroof roof with a 0 degrees pitch.
- Roof overhang: 230mm.
- Roof covering: Optional.
- Floor: Opional.
- Foundation beams: Optional.
Doors & windows
- Door: Single door (size: 1930mm x 770mm).
- Glazing: Double glazing 4-6-4.
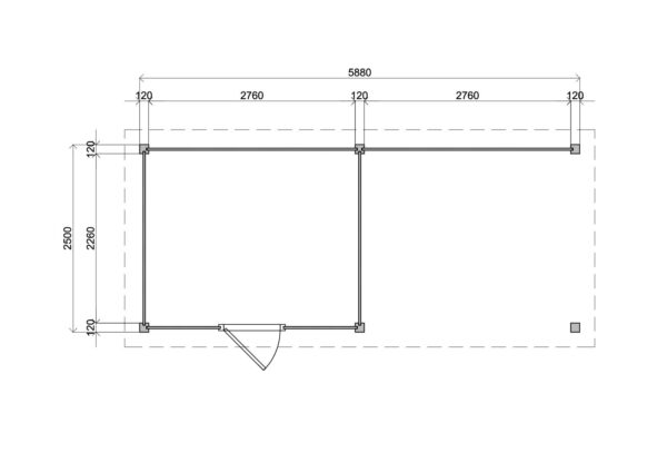
Dimensions
- Wall height: 2230mm.
- Ridge height: 2500mm.
- Footprint: 588cm.
If you’d like, we can help you choose the best foundation and roof covering for your site and intended use.















































